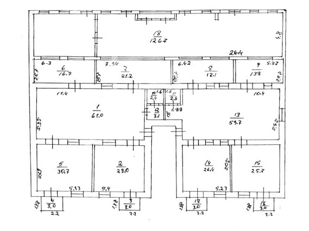
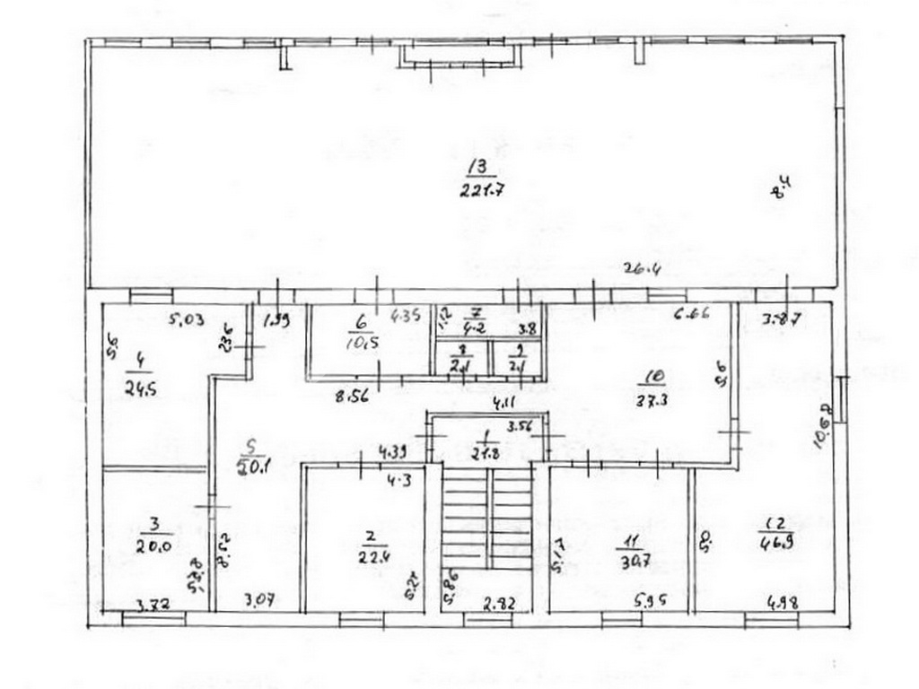
Կոմերցիոն - Երևան/Փոքր Կենտրոն/Թումանյան փողոց
-
Կոմերցիոն գույքի մակերեսը (ք/մ): 1000.00
-
Շինության տիպը: քարե
-
Վիճակը: կապիտալ վերանորոգում
-
Հարկայնությունը: 3
-
Կոմերցիոն գույքի տեսակը: առանձին շենք
-
Հարկի լրացուցիչ տվյալներ: 2րդ հարկ+մանսարդ
-
Տարածքի տեսակը: գրասենյակային
Հիփոթեկային հաշվիչ
Նկարներ
Նմանատիպ անշարժ գույք
Վաճ.
գրասենյակային
1013.00
N/A
Կոմերցիոն
Երևան/Փոքր Կենտրոն/Սայաթ-Նովայի պողոտա
Կոդը: 9-1-1-1790
3,320,000







