Վաճ.
Բնակարան - Երևան/Փոքր Կենտրոն/Տիգրան Մեծի պողոտա (Փ.Կ.)
-
Հարկայնությունը: 17
-
Առաստաղի բարձրությունը (մ): 3.00
-
Շինության տիպը: նորակառույց
-
Վիճակը: առանց վերանորոգման
Նկարներ
Հարմարություններ
- Առաջին գիծ
- Շենքի սպասարկում
- Շենքի անվտանգություն
- Ավտոկայանատեղ
- Վերելակ
- Ջեռուցման համակարգ
- Հովացման համակարգ
- Բաց պատշգամբ
- Տեսարան
- Տրանսպորտի հասանելիություն
- Էքսկլյուզիվ դիզայն
- Մասնակի վճարում
- Հիփոթեքի հնարավորություն
Վաճառքի նկարագրություն
«Firdus» բնակելի համալիրը կառուցվում է 5,7 հեկտար հողակտորի վրա Տիգրան Մեծ պողոտայի և Խանջյան փ․ միջակայքում (Ֆիրդուս)։
Այստեղից 2-3 րոպեի ընթացքում ոտքով կարելի է հասնել Հանրապետության Հրապարակ, Օղակաձև զբոսայգի, Երևանի Սուրբ Գրիգոր Լուսավորիչ մայր եկեղեցի, Վերնիսաժի այգի, մետրոյի կայարաններ և այլն։
Բնակելի համալիրը կունենա կանաչապատ տարածքներ, սրճարաններ, ճեմուղիներ,խանութներ, հանգստի գոտիներ և այլն։
«Firdus» -ը ստեղծում է նոր մշակույթի և կյանքի որակի հնարավորություն անմիջապես քաղաքի սրտում։
Շահավետ ներդրում՝ երաշխավորված արժևորմամբ։
Շենքերի 1-ին և 2-րդ հարկերը նախատեսված են կոմերցիոն տարածքների համար։
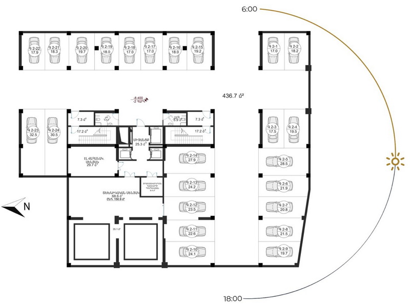
Համալիրը բաղկացած է 3 մասնաշենքերից՝ 287 բնակարաններ և 114 ավտոկայանատեղիներ։
Շենքերի սեյսմակայունությունը՝ 9 + բալ։
• Հարմարավետ և ճիշտ նախագծված բնակարաններ
• Ժամանակակից, արագագործ և անաղմուկ վերելակներ
• Գեղեցիկ տեսարաններ
• Ընդարձակ ավտոկայանատեղի
• Միջբակային ճանապարհներ
• Կոմերցիոն տարածքներ և հանգստի գոտիներ
• Բարձրակարգ ենթակառուցվածք
• Քաղաքակիրթ միջավայր
Արժեքները սկսվում են 3450$/քմ համար։
Շինարարության սկիզբը՝ 2024թ․
Ավարտը՝ 2027թ․ վերջ։








































