Վաճ.

Կոդը: 1-DH-8
Երևան/Փոքր Կենտրոն/Անտառային փողոց/23
Վաճառք
688,380
Վաճառք 1 ք/մ
3300
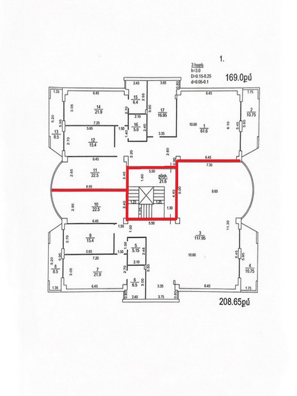
Հատակագծեր

Բնակարան - Երևան/Փոքր Կենտրոն/Անտառային փողոց/23

  • Բնակարանի մակերեսը (ք/մ): 208.50
  • Հարկ: 5
  • Սենյակների քանակը: 4
  • Հարկայնությունը: 5
  • Ննջասենյակների քանակը: 3
  • Սանհանգույցների քանակը: 2
  • Առաստաղի բարձրությունը (մ): 3.00
  • Շինության տիպը: նորակառույց
  • Վիճակը: առանց վերանորոգման

Հիփոթեկային հաշվիչ

Հարմարություններ

  • Շենքի սպասարկում
  • Շենքի անվտանգություն
  • Ավտոկայանատեղ
  • Վերելակ
  • Ջեռուցման համակարգ
  • Հովացման համակարգ
  • Շքապատշգամբ
  • Տեսարան
  • Լողավազան

Վաճառքի նկարագրություն

 Պրեմիում դասի “Դրիմ Հաուս” բնակելի համալիրը գտնվում է Երևանցիների  ամենասիրված հատվածներից մեկում՝ Կասկադ համալիրի հարևանությամբ, նրա ձախակողմյան բարձրադիր լանջին: Այստեղից բացվում է հիանալի տեսարան դեպի քաղաք և Արարատ լեռը: Շենքից 3-4 րոպե քայլելով կարելի է հասնել Շառլ Ազնավուրի տուն-թանգարան և Կասկադի շարժասանդուխքներով իջնել Կասկադ: 
   Շինարարությունն իրականացվում է արդի տեխնոլոգիաներով: Շենքի ամբողջովին մոնոլիտ երկաթբետոնե կոնստրուկցիաները հաշվարկված են 9+ բալ սեյսմակայունության համար: Օգտագործվում է բացառապես բարձրորակ շինանյութ: Նախատեսված է արտաքին պատերի երեսպատում սպիտակ տրավերտինով, Mammoth ապրանքանիշի գեոտերմալ հովացման և ջեռուցման համակարգ, ինչը թույլ կտա Ձեզ  միջոցներ խնայել: Շենքը ունի բարձրորակ ջերմամեկուսացում և ձայնամեկուսացում: Ընդհանուր օգտագործման տարածքները մարմարապատ են: Պատուհանները կտեղադրվեն Schuco գերմանական պրոֆիլներով և անգլիական Pilkington ապրանքանիշի եռաշերտ 6 միլիմետրանոց ապակիներով :   Համաձայն նախագծի բոլոր բնակարանները ունեն շքապատշգամբներ: Կա ստորգետնյա ավտոկայանատեղի:
      Բնակելի համալիրի տարածքը նախատեսված է ապահովել անվտանգության տեսաձայնագրման համակարգով,  շուրջօրյա պահակակետով: Շենքի լայնարձակ նախասրահը և կոնսյերժ-սերվիս ծառայությունը կստեղծեն լրացուցիչ հարմարավետություն Ձեզ համար:  Շենքում կգործի Schindler արտադրության բարձրորակ վերելակ:
     Բարեկարգ կանաչապատ բակը, հանգստի գոտին, մանկական խաղահրապարակը և լողավազանը  կապահովեն  Ձեր և Ձեր ընտանիքների հիանալի ժամանցը: 
   

Նմանատիպ անշարժ գույք

Վաճ.

N/A

N/A

N/A

Բնակարան
Երևան/Ավան/Հրաչյա Աճառյան փողոց

Կոդը: 87227

Գինը պայմանագրային

Վաճ.

5

179.20

3

Բնակարան
Երևան/Փոքր Կենտրոն/Անտառային փողոց/24/9

Կոդը: 1-DH-20

537,600

Վաճ.

N/A

N/A

N/A

Բնակարան
Երևան/Մեծ Կենտրոն/Վերֆելի փողոց

Կոդը: 11396

Գինը պայմանագրային

Վաճ.

4

148.30

6

Բնակարան
Երևան/Փոքր Կենտրոն/Անտառային փողոց/24/9

Կոդը: 1-DH-27

519,050

Վաճ.

4

166.85

5

Բնակարան
Երևան/Փոքր Կենտրոն/Անտառային փողոց/24/9

Կոդը: 1-DH-11

550,605

Վաճ.

N/A

N/A

N/A

Բնակարան
Երևան/Փոքր Կենտրոն/Տիգրան Մեծի պողոտա (Փ.Կ.)

Կոդը: 53766

Գինը պայմանագրային

Հետադարձ կապ